Les infos Essentielles
Idéal investisseur ou projet commercial – Centre-ville de Brioude
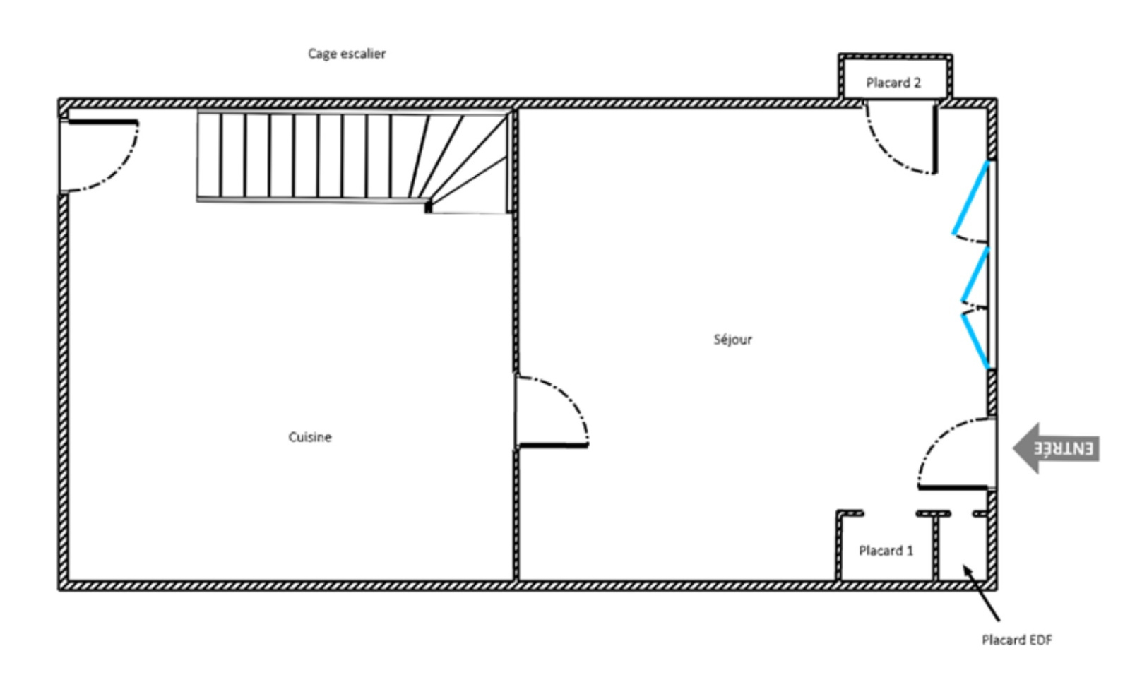
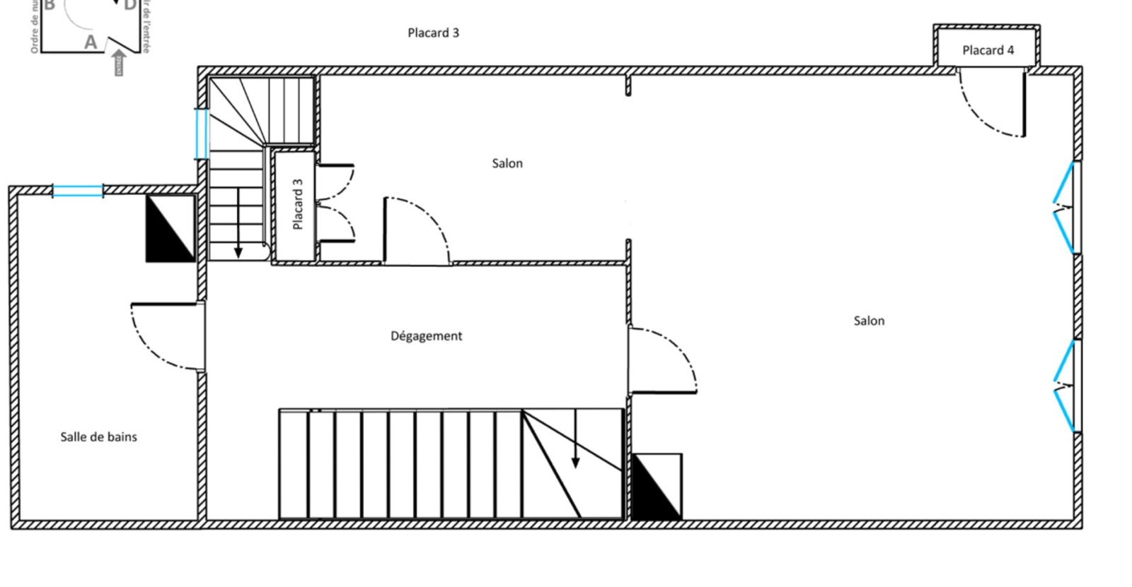
En plein cœur de Brioude, cette maison à rénover offre un fort potentiel pour un projet commercial ou mixte. Édifiée sur plusieurs niveaux, elle développe environ 112 m² (surface à redéfinir selon les aménagements envisagés).
Des travaux sont à prévoir : remplacement de la chaudière gaz de ville, rénovation des huisseries et mise aux normes de l’installation électrique. La toiture, quant à elle, a été refaite récemment.
Grâce à sa localisation centrale et à la modularité de ses volumes, ce bien constitue une belle opportunité pour accueillir une activité professionnelle.
contact Sandy au o760356681
Les informations sur les risques auxquels ce bien est exposé sont disponibles sur le site Géorisques
Localisation Du bien
-
Commerces et santé
-
Loisirs
-
Ecoles
-
Transports
-
Pratique
Les infos Energetiques
Logement à consommation énergétique excessive : classe F
Montant estimé des dépenses annuelles d'énergie pour un usage standard est compris entre 3 320 € et 4 540 € . Prix moyens des énergies indexés sur les années 2021, 2022 et 2023 (abonnements compris).
La base légale du traitement repose sur l’intérêt légitime de l'Agence / du Réseau.
Elles sont conservées jusqu'à demande de suppression et sont destinées à l'Agence / au Réseau.
Conformément à la loi « informatique et libertés », vous pouvez exercer votre droit d'accès aux données vous concernant et les faire rectifier en contactant l'Agence / le Réseau.
Si vous estimez, après avoir contacté l'Agence / le Réseau, que vos droits « Informatique et Libertés » ne sont pas respectés, vous pouvez adresser une réclamation à la CNIL.
Nous vous informons de l’existence de la liste d'opposition au démarchage téléphonique « Bloctel », sur laquelle vous pouvez vous inscrire ici : https://www.bloctel.gouv.fr
Dans le cadre de la protection des Données personnelles, nous vous invitons à ne pas inscrire de Données sensibles dans le champ de saisie libre
Ce site est protégé par reCAPTCHA, les Politiques de Confidentialité et les Conditions d'Utilisation de Google s'appliquent.
Détails des diagnostics énergétiques
Logement à consommation énergétique excessive : classe F
Montant estimé des dépenses annuelles d'énergie pour un usage standard est compris entre 3 320 € et 4 540 € . Prix moyens des énergies indexés sur les années 2021, 2022 et 2023 (abonnements compris).
Maison d'hôte
